Dieser Bungalow aus den späten 1950er-Jahren ist mehr als nur Bestand. Er ist eine Bühne für Ideen. In ruhiger Bestlage von Kronberg gelegen, eingerahmt von altem Baumbestand und viel Grün, öffnet sich hier die Möglichkeit, architektonische Geschichte fortzuschreiben – auf einem Grundstück, das bereits eine genehmigte Bauplanung für eine moderne Villa mit rund 300 m² Wohnfläche bereithält.
INTERIEUR
Das bestehende Gebäude – ein klassischer Mid-Century-Bungalow mit Split-Level-Struktur und markanten Fensterfronten – verkörpert den klaren, funktionalen Stil seiner Zeit. Lichtdurchflutete Räume, durchdachte Grundrisse und eine Architektur, die den Dialog mit der Natur sucht, machen den Bestand besonders interessant für Liebhaber von Mid-Century-Design oder für Bauherren, die Bestehendes neu interpretieren möchten.
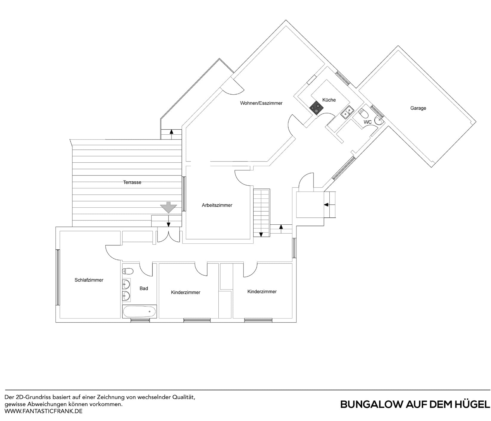
Ca. 185 m² Wohnfläche verteilen sich aktuell auf sieben Zimmer, darunter ein großzügiger Wohn- und Essbereich mit Blick ins Grüne, drei Schlafzimmer, ein Arbeitszimmer sowie einen Gästebereich mit insgesamt 2 Bädern, Gäste-WC und Küche. Viele Elemente sind im Originalzustand erhalten – von den großflächigen Fenstern über die authentische Fliesenarchitektur bis hin zu den integrierten Einbauschränken.
Der Bungalow ist sanierungsbedürftig, bietet aber eine hervorragende Basis für eine moderne Neugestaltung.
EXTERIEUR
Das rund 1.360 m² große Grundstück liegt leicht erhöht in einer ruhigen Sackgasse in bester Lage Kronbergs. Umgeben von beeindruckendem Baumbestand und dichtem Grün entsteht hier eine natürliche Kulisse, die Privatsphäre und Ruhe garantiert.
Die horizontale Linienführung, die weißen Fassadenflächen und die weit geöffneten Glasfronten lassen den Baukörper mit seiner Umgebung verschmelzen – Architektur und Landschaft treten in einen harmonischen Dialog. Ein Paradebeispiel seiner Zeit, entworfen vom Architekten, Klaus Dieter Böckel.
Von Terrasse und Wohnraum öffnet sich der Blick in den idyllischen, weitläufigen Garten, der den fließenden Übergang von Innen nach Außen betont.
Das genehmigte Neubaukonzept nutzt die vorhandene Topografie perfekt: Es verbindet moderne Architektur mit dem bestehenden Naturraum und schafft ein Wohnhaus, das Offenheit, Licht und Privatsphäre in Einklang bringt.
LAGE
Kronberg im Taunus zählt zu den begehrtesten Wohnlagen des Rhein-Main-Gebiets – eine Stadt, die Natur, Kultur und urbane Nähe in seltener Balance vereint. Der Bungalow Auf dem Hügel liegt in einer gewachsenen, ruhigen Sackgasse – umgeben von architektonisch anspruchsvollen Villen und großzügigen, parkähnlichen Gärten.
Die erhöhte Lage sorgt nicht nur für Licht und Weite, sondern auch für ein hohes Maß an Privatsphäre. Spazierwege durch den angrenzenden Wald beginnen direkt vor der Haustür, während der historische Stadtkern mit Cafés, Boutiquen und Wochenmarkt in wenigen Minuten erreichbar ist.
Internationale Schulen, der Golf- und Tennisclub sowie vielfältige Freizeitangebote liegen in unmittelbarer Umgebung. Frankfurt erreicht man mit dem Auto oder der S-Bahn in rund 20 Minuten, den Flughafen in ebenfalls 20 Minuten.
Architect
Klaus Dieter Böckel
Highlights
1.360 m² Grundstück
Alter Baumbestand
Maximale Privatsphäre
Mid-Century Design
Split-Level Struktur
Premiumlage Kronberg
Neubau-Villa erlaubt





Fakten
Shortcuts
InteresseMid century Bungalow Auf dem Hügel
Do you have questions about the property or would you like to schedule a viewing? Please fill out the form below, and we will get back to you as soon as possible.
Frankfurt Showroom, Deutschland

ShowroomFantastic Frank Frankfurt ist Teil eines internationalen Immobilienunternehmens, das designorientierte Objekte in einigen der weltweit begehrtesten Standorte vermittelt. Unser Showroom befindet sich in Sachsenhausen – einem Stadtteil, der mit seiner Vielfalt und Atmosphäre den internationalen Puls Frankfurts aufgreift. Geleitet von unserer Liebe zu großartigem Design und persönlichem Service verbinden wir Menschen mit Immobilien, die wirklich mit ihnen resonieren.


